Rodinný dům na prodej, ID: 9580

Drahany, Drahany, okres Prostějov, Olomoucký kraj

5 490 000,- Kč

VIDEO
Odkaz na video : https://www.youtube.com/watch?v=Am0FdmsOl5g
Protože byly Vámi zablokovány cookies, nemůžeme Vám zde přímo zobrazit video.
Změnu nastavení cookies můžete provést zde : O cookies
 

O nemovitosti ID 9580

  • Druh: Rodinný dům
  • Katastrální území: Drahany
  • Obec/Město: Drahany
  • Okres: Prostějov
  • Kraj: Olomoucký kraj
  • Cena: 5 490 000,- Kč
  • Exkluzivita: ano
  • ENB: B
  • Počet pokojů: 3
  • Stav: Po rekonstrukci
  • Stavba: Smíšená
  • Plocha pozemku: 666 m²
  • Typ domu: Patrový
  • Parkování: ano
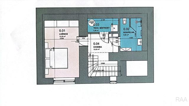
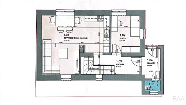
  • Užitná plocha: 140 m²

Popis nemovitosti

Nabízíme k prodeji samostatně stojící RD 3+kk po rekonstrukci, s krásnou zahradou v obci Drahany, 10 km od Plumlovské přehrady. Obec Drahany se nachází ve vyhledávané zalesněně oblasti Drahanské vrchoviny a je vzdálená 20 km od Prostějova, 25 km od Blanska a 40 km od Olomouce a 50 km od Brna. Celková výměra parcely je 666 m², zastavěná plocha cca 90 m². Parcela má pravidelný obdélníkový tvar (cca 35 x 19 m) a nachází se nedaleko centra obce, směrem na Blansko. Dům o dispozici 3+kk je ze smíšeného zdiva, má 1 nadzemní podlaží a 1 podzemní podlaží. Dům byl postaven cca někdy okolo r. 1930 a byl rekonstruován v r. 2022-2023 – nová přístavba zádveří s WC (Ytong), nová střešní krytina (pálená taška), hydroizolace vč. drenáže, příčky Ytong, koupelna, nové rozvody el. vč. přípojky 380 V, nové rozvody vody a kanalizace vč. nových přípojek na obecní řady, elektrokotel + zásobník 120 l, teplovodní podlahové vytápění, el. rohože v koupelně a WC, nově vyvložkovaný komín, retenční nádrž (9 m3), zateplení zdiva EPS min tl. 15 cm, sokly XPS min. tl. 12 cm, stropy SDK s izolací min. 24 cm Lambda 33, nová okna, obložkové interiérové dveře, podlahy vinyl a dlažba (z původního domu bylo zachováno pouze obvodové zdivo, stropy a krov). V přízemí se nachází vstupní zádveří, pěkný pokoj, prostorný obývací pokoj s kuchyňským koutem (nová kuchyňská linka - varná deska, el. trouba, myčka, digestoř, dřez) a přípravou na krb, WC s umyvadlem. V suterénu je útulná ložnice s přímým vstupem na terasu a do zahrady, koupelna (sprchový kout, umyvadlo se skříňkou, WC, otopný žebřík, ventilátor) a technická místnost s prádelnou (elektrokotel, zásobník, místo pro pračku). V domě osvětlení, na oknech roletky, nová kuchyňská linka. Objekt je ze smíšeného zdiva, základy kamenné ( přístavba zádveří ŽB), střecha sedlová, krytina pálená taška, krov původní), stropy klenbové cihlové, okna plastová (trojsklo). IS – el. (220 a 380) ,obecní voda, obecní kanalizace. Je možné se napojit na plyn. Vytápění a ohřev vody – elektrokotel + zásobník 120 l. Teplovodní podlahové vytápění, v koupelně a WC el. podlahové rohože, příprava na krbová kamna v obývacím pokoji. Dům má velmi pěkný pozemek, orientace zahrady na J. Krásná terasa s výhledem do zahrady (zásuvky, voda). Pozemek je oplocen. 2 parkovací stání vedle domu. Bydlení nedaleko centra obce, v blízkosti obchod, restaurace, autobus, v obci lékař, služby, škola, školka. Volné ihned. Cena vč. právního servisu a provize RK. Kompletní informace o stavu nemovitosti obdržíte u makléře, veškeré uvedené údaje jsou pouze informativní. PENB podle staré vyhlášky má hodnotu B.